Network News: Need office space?
Your success requires the aid of others
Need a new office like Katie’s?
After seeing this post in October Katie and her team at Aspire moved in there last month!
The same folk have two new units coming up so get in touch if you’re looking for office space in London…
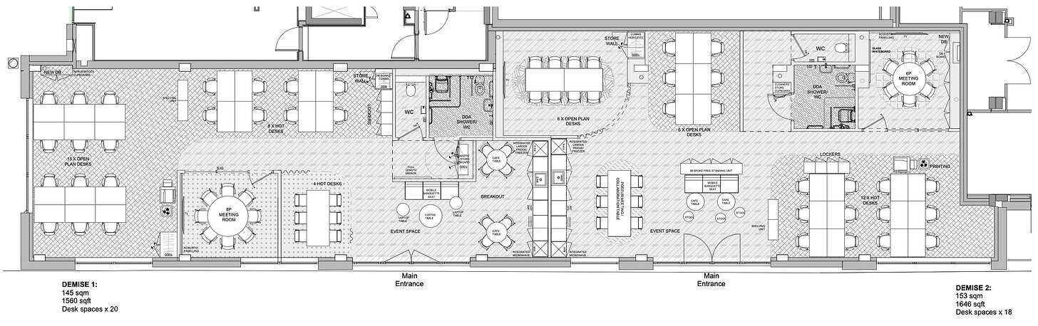
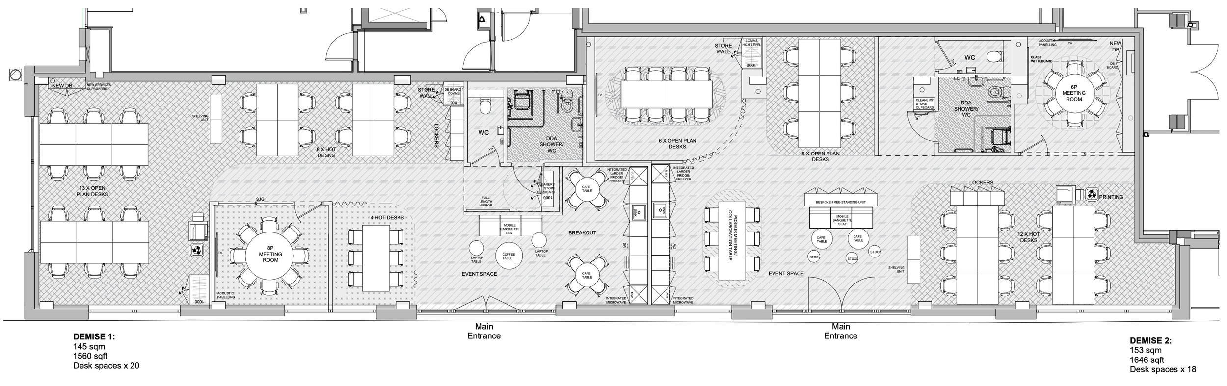
Main details
Location:
Harper Road, SE1 6AW.
what3words address: ///splice.ideal.fairly
Nearest tube station: Borough.
Size:
Unit 1: 1560 sq ft / 20 person office.
Unit 2: 1646 sq ft / 18-20 person office.
Other details:
Self-contained, part-furnished offices.
6 - 8 person meeting room + collaboration space.
Kitchen, showers, air-con.
High-speed leased-line broadband connection.
Security shutters & key fob entry system.
Available from mid-March / April 2023.
Cost:
£15,000/month + VAT all inclusive per unit.
You can see more on the microsite here.
If you’re looking then hit reply or email Matthew on matthew@9others.com so I can connect you to the team.
News of your own?
If you have any news you want to share with the 9others network just hit reply or email Matthew on matthew@9others.com
Upcoming meals with 9others
Tuesday 21st February 2023 — Paris — details and signup here.
Wednesday 22nd February — London — details and signup here.
Wednesday 29th March — London — details and signup here.
Please book in & share with good people you know in the above cities.


